Built by Scotbilt Waycross
Waycross Express
3258494
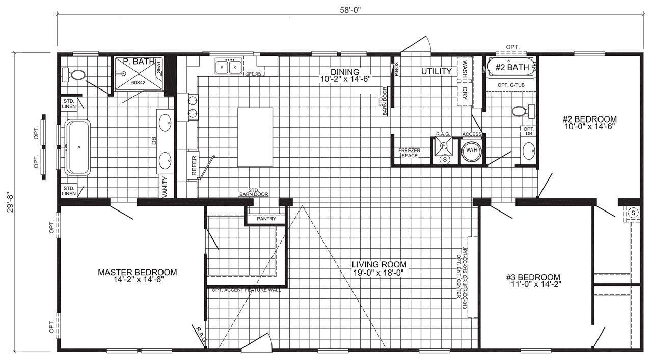
The Waycross Express 3258494 is a spacious multi-section manufactured home designed to provide comfort, style, and functional living. Offering approximately 1,720 square feet of space, this floor plan features three bedrooms and two bathrooms, making it ideal for families or those who want extra room to spread out.
Interested in this home?
Contact us today at 706-639-6762
or visit our lot to see this home in person.
Contact us today at 706-639-6762
or visit our lot to see this home in person.
Virtual Tour
Want to learn more about this home? Contact us today.
Message us today & let us help you find the perfect home for your family.
CONTACT US CALL NOW

























