Built by Scotbilt Waycross
Providence
3264543
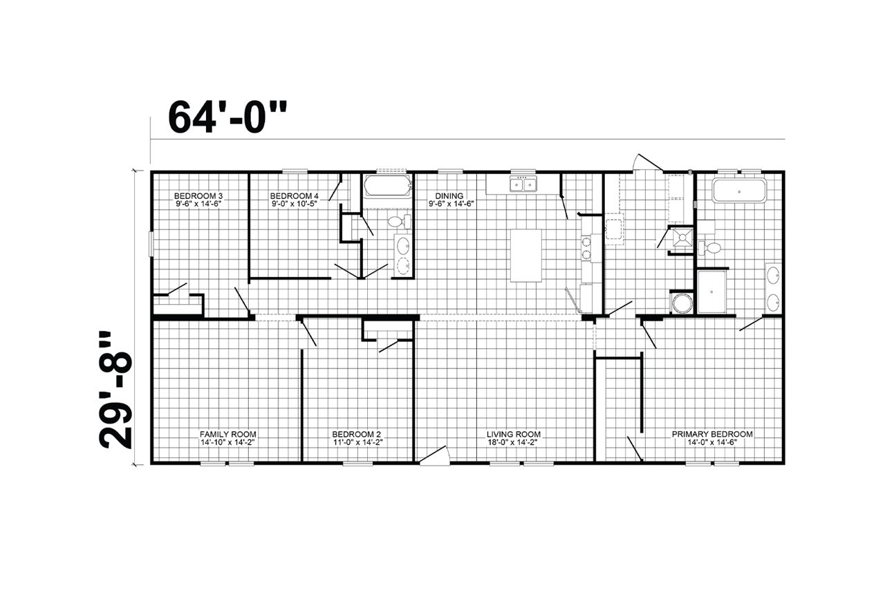
The Providence 3264543 is a spacious multi-section manufactured home designed to offer comfort, functionality, and modern living for larger households. Featuring approximately 1,898 square feet of living space, this well-planned floor plan includes four bedrooms and two bathrooms, providing plenty of room for families or those who need extra space for guests or a home office.
Interested in this home?
Contact us today at 706-639-6762
or visit our lot to see this home in person.
Contact us today at 706-639-6762
or visit our lot to see this home in person.
Virtual Tour
Want to learn more about this home? Contact us today.
Message us today & let us help you find the perfect home for your family.
CONTACT US CALL NOW


















