Built by Scotbilt Waycross
Legend
3276502
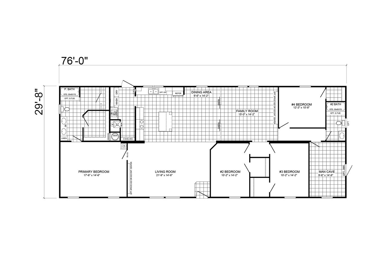
The Legend 3276502 is a spacious, multi‑section manufactured home with 4 bedrooms and 2 bathrooms, featuring an open floor plan with a large kitchen and family room, a private primary suite, and flexible spaces designed for comfort and everyday living.
Interested in this home?
Contact us today at 706-639-6762
or visit our lot to see this home in person.
Contact us today at 706-639-6762
or visit our lot to see this home in person.
Want to learn more about this home? Contact us today.
Message us today & let us help you find the perfect home for your family.
CONTACT US CALL NOW








