Built by Scotbilt Waycross
Legend
3260495
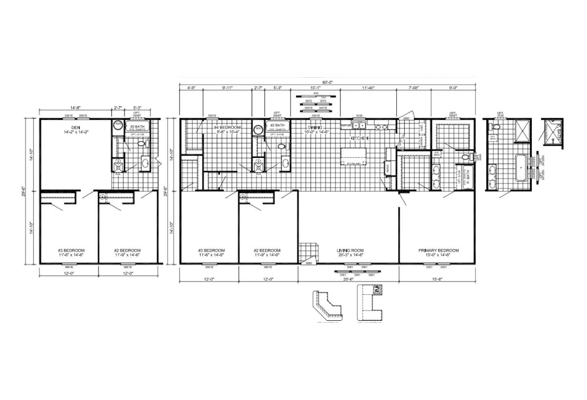
The Legend 3260495 is a spacious, ranch-style, double-section manufactured home with about 1,780 square feet of living space, featuring 4 bedrooms and 2 bathrooms in a well-thought-out layout. It centers around an open main living area that connects the kitchen, dining, and family spaces for comfortable everyday living, while providing generous bedrooms including a private primary suite.
Interested in this home?
Contact us today at 706-639-6762
or visit our lot to see this home in person.
Contact us today at 706-639-6762
or visit our lot to see this home in person.
Want to learn more about this home? Contact us today.
Message us today & let us help you find the perfect home for your family.
CONTACT US CALL NOW






