Built by Scotbilt Waycross
Legend
1660522
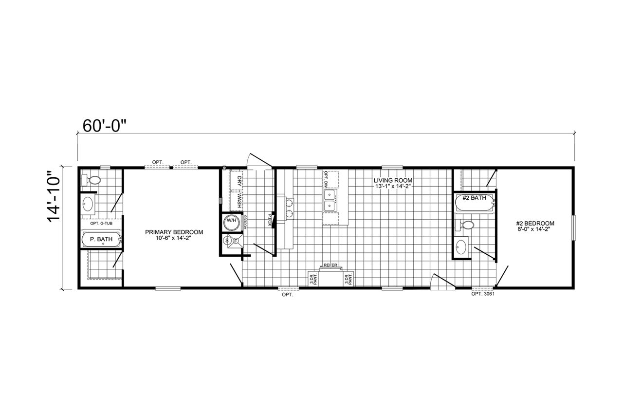
The Legend 1660522 is a compact, single-section manufactured home offering around 890 square feet of living space with 2 bedrooms and 2 bathrooms, designed for comfortable everyday living. It features an open layout that connects the main living areas and includes a utility room for added convenience. The primary suite has its own bathroom while the guest bedroom sits near the second bath, making the floor plan both practical and livable.
Interested in this home?
Contact us today at 706-639-6762
or visit our lot to see this home in person.
Contact us today at 706-639-6762
or visit our lot to see this home in person.
Want to learn more about this home? Contact us today.
Message us today & let us help you find the perfect home for your family.
CONTACT US CALL NOW







