Built by Scotbilt Waycross
Legend
1456503
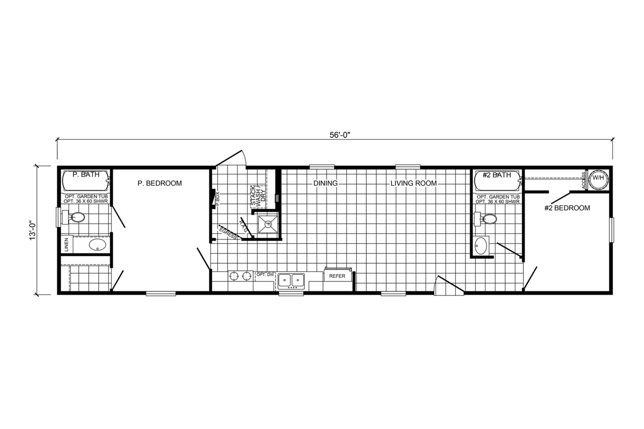
The Legend 1456503 is a thoughtfully designed, single-section manufactured home offering 728 square feet of well-planned living space with 2 bedrooms and 2 bathrooms. Built to the federal HUD building code, this model combines efficiency and comfort in a compact footprint, featuring a flexible utility room and customizable options that allow buyers to personalize key areas like the kitchen and primary bathroom.
Interested in this home?
Contact us today at 706-639-6762
or visit our lot to see this home in person.
Contact us today at 706-639-6762
or visit our lot to see this home in person.
Want to learn more about this home? Contact us today.
Message us today & let us help you find the perfect home for your family.
CONTACT US CALL NOW


