Built by Scotbilt Waycross
Icon

2876506

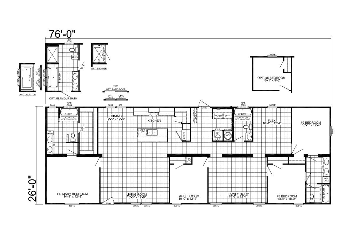
4 Bed 3 Bath 1976 Sq Ft

The Icon 2876506 is a thoughtfully designed manufactured home offering a balanced blend of comfort and practicality, featuring multiple bedrooms and bathrooms to accommodate families or those who enjoy extra space. Its open floor plan creates a seamless flow between the living room, dining area, and kitchen, making the central space feel bright and welcoming for both everyday living and entertaining.

Interested in this home?
Contact us today at 706-639-6762
or visit our lot to see this home in person.

Floor Plan

Features & Highlights

Open Concept

Kitchen Island

Energy Efficient Appliances

Virtual Tour

Want to learn more about this home? Contact us today.

Message us today & let us help you find the perfect home for your family.

CONTACT US CALL NOW