Built by Scotbilt Waycross
Icon
1676516
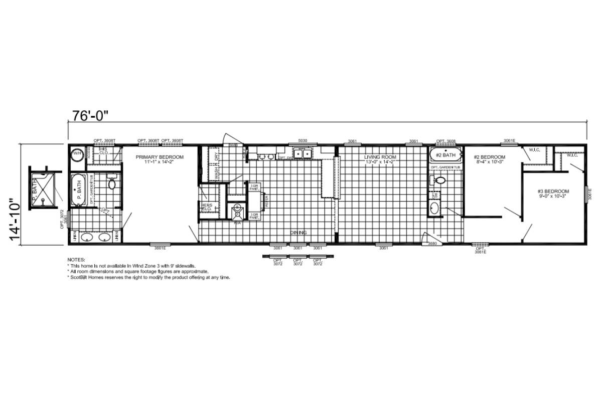
The Icon 1676516 is a compact yet well‑designed manufactured home offering approximately 1,127 square feet of comfortable living space with three bedrooms and two bathrooms. Its open layout connects the living, dining, and kitchen areas to create a welcoming environment that’s ideal for everyday living and hosting guests, while the thoughtfully arranged kitchen and living spaces make daily tasks and gatherings intuitive and enjoyable.
Interested in this home?
Contact us today at 706-639-6762
or visit our lot to see this home in person.
Contact us today at 706-639-6762
or visit our lot to see this home in person.
Want to learn more about this home? Contact us today.
Message us today & let us help you find the perfect home for your family.
CONTACT US CALL NOW













