Built by Scotbilt Waycross
Freedom
3276518
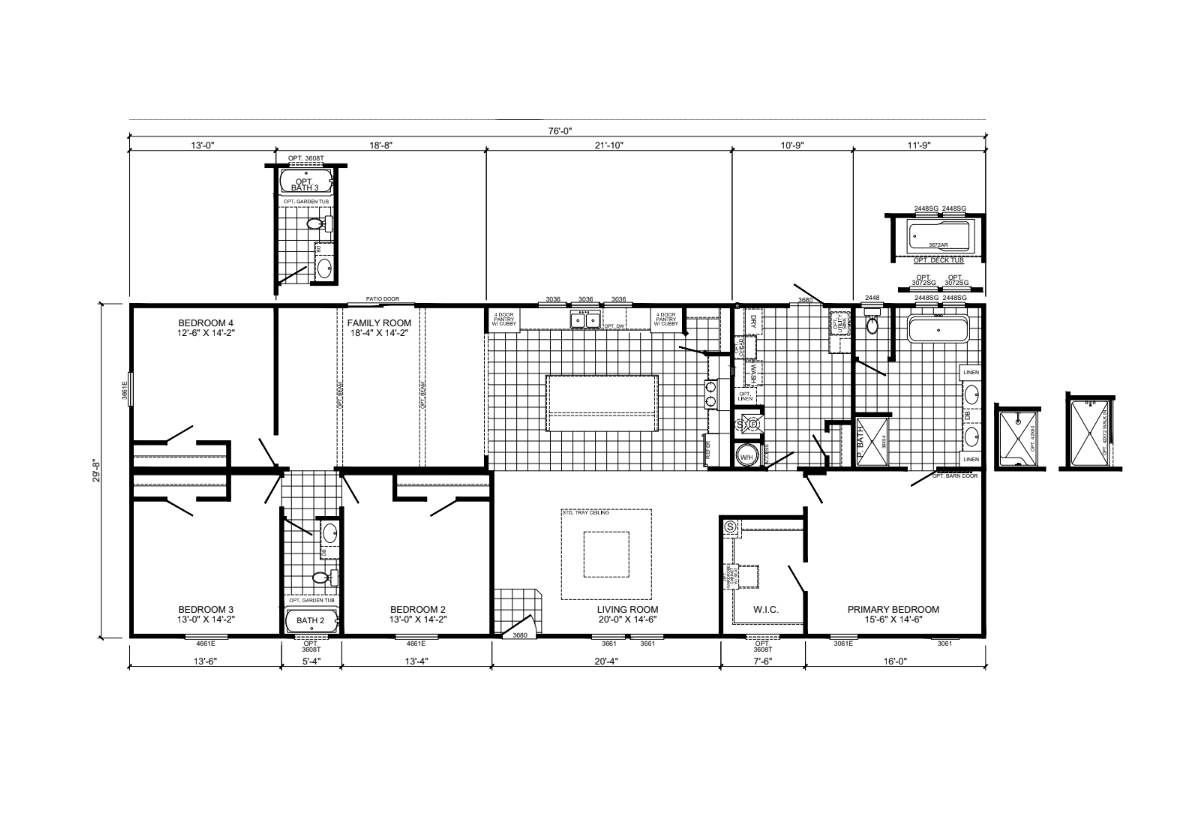
The Freedom 3276518 is a spacious and thoughtfully designed manufactured home offering ample living space with multiple bedrooms and bathrooms, ideal for families or anyone who values room to spread out and entertain. Its open floor plan connects the living room, dining area, and kitchen, creating a welcoming environment that’s perfect for everyday living and social gatherings.
Interested in this home?
Contact us today at 706-639-6762
or visit our lot to see this home in person.
Contact us today at 706-639-6762
or visit our lot to see this home in person.
Want to learn more about this home? Contact us today.
Message us today & let us help you find the perfect home for your family.
CONTACT US CALL NOW







