Built by Scotbilt Waycross
Freedom
3276517
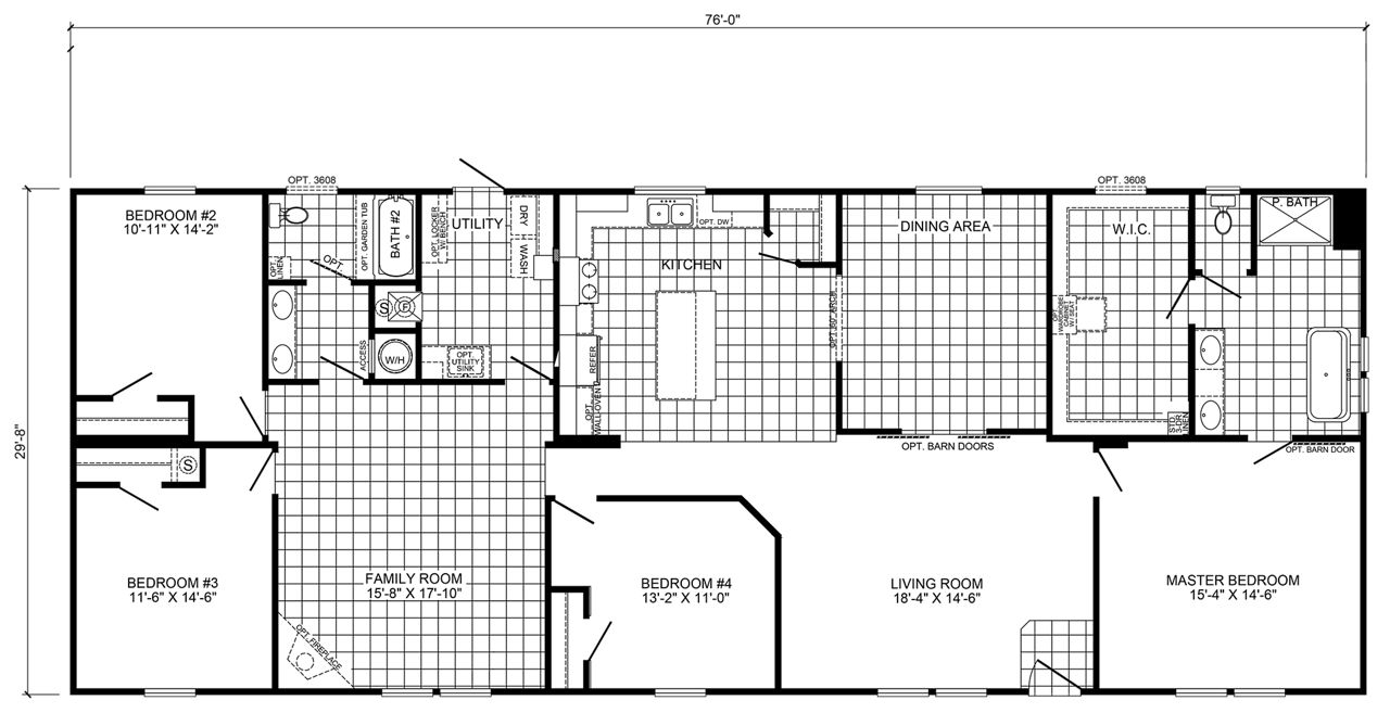
The Freedom 3276517 is a spacious and thoughtfully designed manufactured home offering approximately 2,255 square feet of living space with four bedrooms and two bathrooms, making it ideal for larger families or those who enjoy extra room. Its open layout includes generous living and dining areas that flow into a well-appointed kitchen, creating a comfortable and welcoming environment for both everyday living and entertaining.
Interested in this home?
Contact us today at 706-639-6762
or visit our lot to see this home in person.
Contact us today at 706-639-6762
or visit our lot to see this home in person.
Virtual Tour
Want to learn more about this home? Contact us today.
Message us today & let us help you find the perfect home for your family.
CONTACT US CALL NOW




















