Built by Scotbilt Waycross
Champion Community
2856443
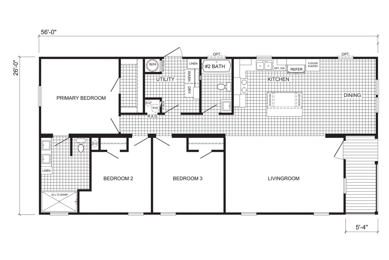
The Nautilus 2856443 is a thoughtfully crafted manufactured home that offers a comfortable and versatile living space with three bedrooms and two bathrooms. Designed with an open layout, the home seamlessly connects the living room, dining area, and kitchen to create a welcoming environment perfect for everyday life and entertaining.
Interested in this home?
Contact us today at 706-639-6762
or visit our lot to see this home in person.
Contact us today at 706-639-6762
or visit our lot to see this home in person.
Virtual Tour
Want to learn more about this home? Contact us today.
Message us today & let us help you find the perfect home for your family.
CONTACT US CALL NOW




























